299 000€
Honoraires charge vendeur
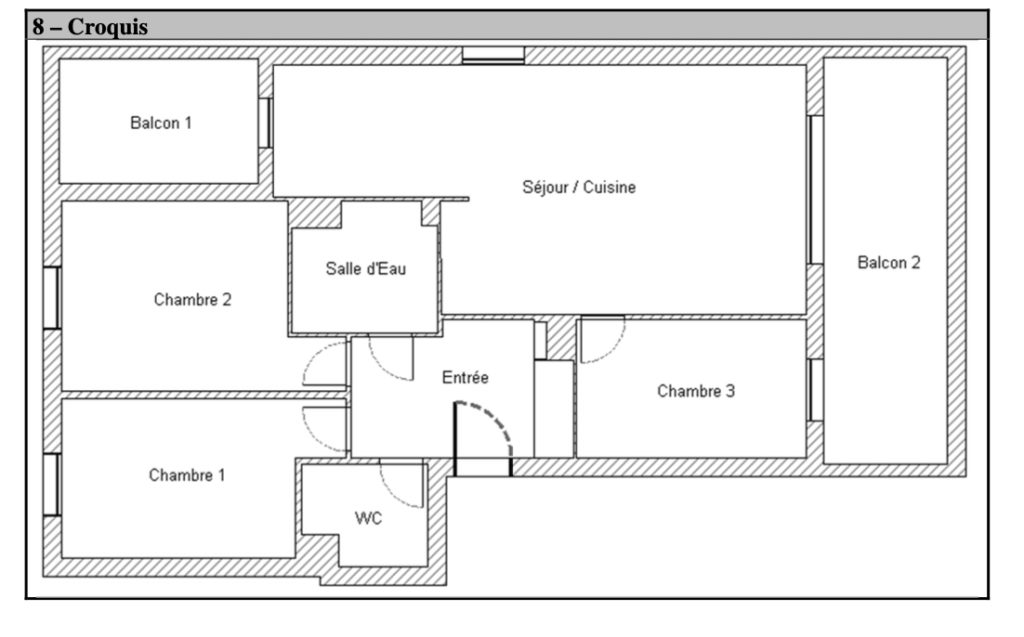
A Bron, découvrez ce spacieux T4 idéalement situé à proximité du tram T2, des lignes de bus, de l'hippodrome de Parilly et du campus de l'Université Lumière Lyon 2. L'appartement s'ouvre sur une entrée avec placard, puis se poursuit par une agréable pièce de vie traversante avec cuisine ouverte sur le séjour, donnant accès aux deux balcons. Il dispose également de trois chambres, dont l'une offrant un accès direct à un balcon, ainsi qu'une salle d'eau et des WC séparés. Possibilité d'acquérir un garage en sus. Contactez Marvin MIRO 06.10.52.52.95 Vivons ensemble votre Instant Immobilier - Estimation offerte sous 48h Copropriété de 113 lots - dont 51 lots habitation. (Pas de procédure en cours). Charges annuelles : 1262 euros.
4
75.75m²
1
Vente
Appartement
BRON
2
1262€
113
Pas de procédure en cours
01/12/2025
790€
1130€
01/01/2023
© 2026 INSTANT IMMOBILIER
Nous utilisons des cookies pour vous garantir la meilleure expérience sur notre site web.