315 000€
Honoraires charge vendeur
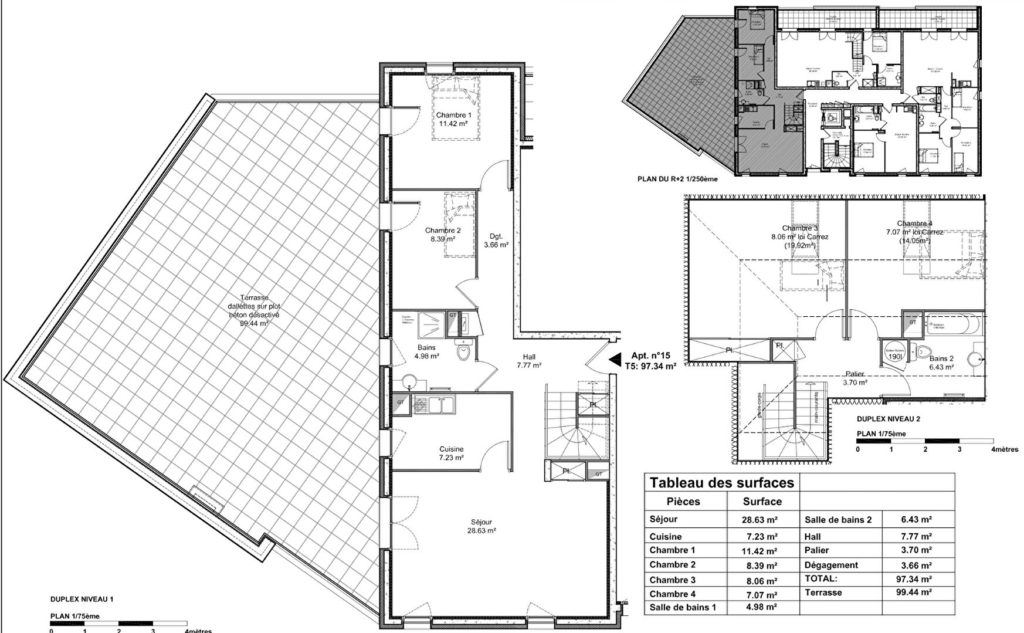
Grand T5- Duplex, lumineux avec terrasse exceptionnelle de 99 m² Venez découvrir ce spacieux appartement T5 de 98 m², situé au 2? étage d'une résidence récente (2011) avec ascenseur. Idéal pour une famille, il offre 4 chambres, une cuisine aménagée et équipée, une salle de bains, une salle d'eau et 2 WC. Son véritable atout : une magnifique terrasse de 99 m², parfaite pour profiter des beaux jours, recevoir famille et amis ou créer un véritable espace de détente. L'appartement dispose également d'un garage double, du chauffage individuel et de la fibre optique. Quelques rafraîchissements permettront de le personnaliser selon vos envies. Emplacement pratique et recherché, proche des commerces, écoles, parc, médecins et transports en commun accessibles à pied. Un bien rare offrant espace, luminosité et un fort potentiel. A visiter sans tarder ! Contact : Laurent Vagnon o6.6o.51.71.79 RSAC LYON 424 487 221 Les informations sur les risques auxquels ce bien est exposé sont disponibles sur le site Géorisques http://www.georisques.gouv.fr. Copropriété de 46 lots - dont 18 lots habitation. Charges annuelles : 988 euros.
5
117.39m²
1
1
Vente
Appartement
RILLIEUX LA PAPE
2
988€
46
Pas de procédure en cours
16/05/2025
1260€
1750€
© 2026 INSTANT IMMOBILIER
Nous utilisons des cookies pour vous garantir la meilleure expérience sur notre site web.